Добро пожаловать на http://vipplan.ru

Випплан Динская - это тысячи проектов домов в нашем каталоге!

Вы всегда сможете найти для себя проект дома вашей мечты! Даже если этого не случилось, мы готовы в любую минуту предложить проект индивидуального дома.

Забыли пароль?
Вы еще не регистрировались?

Перейдите по ссылке ниже на страницу регистрации.

Регистрация...

Внимание!!!

В проектную документацию могут быть внесены изменения любой сложности, в соответствии в Вашими пожеланиями!

Полезные статьи

Где копать колодец?

Водоснабжение за городом - Динская всегда было проблематичным. При отсутствии центрального водоснабжения остается только один выход – выкопать колодец. Водоносный пласт есть не везде. Как же определить, где копать колодец?...

Плиты перекрытий

Железобетонные плиты очень широко используются в строительстве. При помощи них возводят как промышленные объекты так жилые. Железобетонные плиты перекрытия являются главной частью любого строительного объекта вне зависимости от этажности....

Проекты домов и коттеджей > Каталог проектов домов > Проект индивидуального одноэтажного жилого дома с террасой и гаражом Vg2807

Проект индивидуального одноэтажного жилого дома с террасой и гаражом Vg2807

Проект индивидуального одноэтажного жилого дома с террасой и гаражом
Зарегистрируйтесь

Проект № Vg2807


Техническое описание
Общая площадь: 199.97 м2
Жилая площадь: 99.61 м2
Высота здания: 7.29 м
Размеры дома: 18.82м×17.32м
Кол-во комнат: 4
Цокольный этаж: нет
Гараж: нет
Мансарда: нет

Kонструкция
Фундамент: монолитная плита
Перекрытия: деревянные балки
Материал стен: Газобетон

Архитектурный раздел
Конструктивный раздел
АР+КР - 60 000 (Со скидкой 20%)
Одноэтажный жилой дом с террасой и гаражом с размерами здания 17,32 м х 18,82 м. Фундамент - утепленная шведская плита. Наружные стены - газобетонные блоки с отделкой штукатуркой. Пол этажа - пол по монолитной плите. Чердачное перекрытие - деревянные балки с теплошумоизоляцией в межбалочном пространстве. Крыша - многоскатная. Кровля – битумная черепица. Окна — металлопластиковые.
Генплан застройки участка / Паспорт проекта 7000 руб / 10000 руб
Инженерный раздел (полный) 100000 руб
Смета на строительство 50000 руб
Теплотехнический расчет материалов стен Бесплатно
Стоимость проекта со незначительнми изменениями 70000 руб
Стоимость проекта со средними изменениями* 85000 руб
Стоимость проекта со значительными изменениями** 89000 руб

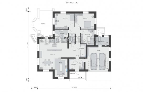
План первого этажа


Тамбур - 7,14 м2
Холл - 18,36 м2
Кладовая - 3,78 м2
Кухня - 15,51 м2
Гостиная - 47,12 м2
Спальня - 19,79 м2
Спальня - 19,10 м2
Спальня - 13,60 м2
Ванная - 7,48 м2
Кладовая - 5,,25 м2
Гараж - 33,40 м2
С/у - 4,08 м2
Бойлерная - 7,40 м2
Проект индивидуального одноэтажного жилого дома с террасой и гаражом Проект индивидуального одноэтажного жилого дома с террасой и гаражом Проект индивидуального одноэтажного жилого дома с террасой и гаражом Проект индивидуального одноэтажного жилого дома с террасой и гаражом

Модификации проектов

Внесение изменений и привязка к участку строительства

В любой из проектов от компании VIPplan - Динская по вашему желанию могут быть внесены изменения в материалы стен, материалы наружной отделки дома, а также будет произведена адаптация проекта под конкретный регион строительства (с учетом грунтов региона, геологических особенностей вашего участка и местных климатических условий) - БЕСПЛАТНО !!! (кроме проектов со скидкой и проектов наших партнеров).

Любой из проектов, размещенных на сайте dinskaya.vipplan.ru мы можем выполнить из требуемых вам строительных материалов: ячеистый бетон (газобетон, пеноблок), керамоблок, кирпич, шлакоблок, бетонный блок, дерево (брус, клееный брус), каркасная технология (деревянный каркас, металлокаркас (ЛСТК)).

Фасад дома и его наружную отделку так же возможно выполнить с применением различных облицовочных материалов: структурной штукатурки, (с утеплителем и без), сайдингом (пластиковый или металлосайдинг), фиброплитами, кирпича.

 
6 Избранные
проекты

Доставка проектов по России: Москва (Московская область), Санкт-Петербург (Ленинградская область), Краснодар, Ростов-на-Дону, Ставрополь, Сочи, Волгоград, Новосибирск, Белгород, Брянск, Воронеж, Саратов, Хабаровск, Астрахань, Нальчик, Владикавказ, Екатеринбург, Тюмень, Самара, Нижний Новгород, Казань, Пермь, Уфа, Челябинск, Красноярск, Ханты-Мансийск, Иркутск, Курган, Оренбург, Омск, Томск, Барнаул, Новокузнецк, Кемерово, Абакан, Чита, Якутск, Южно-Сахалинск, Петропавловск-Камчатский и страны ближнего зарубежья: Белоруссия, Украина, Казахстан